Fluid #2: Velocity 
        analysis of fluid flow in a channel USING FLOTRAN
        
         
        
        Introduction: 
        
        In this example you will model fluid flow in a channel
        
        Physical Problem: 
        
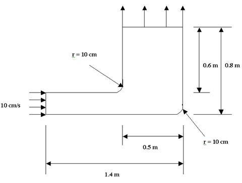
        Compute and plot the velocity distribution within the elbow. Assume that 
        the flow is uniform at both the inlet and the outlet sections and that 
        the elbow has uniform depth.
        
        Problem Description:
        
         
        
          |  | 
          The 
          channel has dimensions as shown in the figure  | 
          |  | 
          The 
          flow velocity as the inlet is 10 cm/s  | 
          |  | 
          Use the continuity 
          equation to compute the flow velocity at exit  | 
          |  | 
          Objective:
           
            |  | 
            To plot the 
            velocity profile in the channel  |  |  | 
            To plot the 
            velocity profile across the elbow  |  | 
          |  | 
          You are required to 
          hand in print outs for the above  | 
          |  | 
          Figure:  | 
        
        
        
                 
        
        IMPORTANT: 
        Convert all dimensions and forces into SI units
        
         
        
        STARTING 
        ANSYS         
        
         
        
          |  | 
          Click on 
          ANSYS 
          6.1
          in the 
          programs menu.  | 
          |  | 
          Select 
          
          Interactive.
           | 
          |  | 
          The 
          following menu comes up. Enter the working directory. All your files 
          will be stored in this directory. Also under 
          Use 
          Default Memory Model
          
          make 
          sure the values 
          64 
          for Total Workspace, and 
          32 
          for Database are entered.  To change these values unclick
          
          Use 
          Default Memory Model  | 
        
        
         
        
        
                   
        
         
        
        MODELING THE STRUCTURE
        
         
        
          |  | 
          Go to the ANSYS 
          Utility Menu (the top bar)  | 
          |  | 
          Click
          Workplane>WP 
          Settings…  | 
        
        
        The following window 
        comes up:
        
         
        
        
                                 
        
         
        
        o       
        Check 
        the Cartesian and Grid Only buttons
        
        o       
        Enter 
        the values shown in the figure above
        
         
        
        ·        
        Go to 
        the ANSYS Main Menu (on the left hand side of the screen) and click
        
        
        Preprocessor>Modeling>Create>Keypoints>On 
        Working Plane
        
        Create
        keypoints corresponding to the vertices in 
        the figure. The keypoints look like below.
        
         
        
        
                  
        
        Now 
        create lines joining these key points. 
        
          |  | 
          
          Modeling>Create>Lines>Lines>Straight line  | 
          |  | 
          The model looks 
          like the one below.  | 
        
        
         
        
        
                  
                             
        
        
         
        
        Now 
        create fillets between lines L4-L5 and L1-L2.
        
          |  | 
          Click 
          Modeling>Create>Lines>Line Fillet.  
          A pop-up window will now appear.  Select lines 4 and 5.  Click OK.
           The following window will appear:  | 
        
        
         
        
        
        
         
        
          |  | 
          This window assigns 
          the fillet radius.  Set this value to 0.1 m.  | 
          |  | 
          Repeat this process 
          of filleting for Lines 1 and 2.  | 
          |  | 
          The model should 
          look like this now:  | 
        
        
         
        
        
                   
        
         
        
          |  | 
          Now make an area 
          enclosed by these lines.  | 
        
        
          |  | 
          
          Modeling>Create>Areas>Arbitrary>By Lines  | 
          |  | 
          Select all the 
          lines and click OK. The model looks like the following  | 
        
        
         
        
                
        
         
        
          |  | 
          The modeling of the 
          problem is done.  | 
        
        
         
        
        ELEMENT PROPERTIES
        
         
        
        SELECTING ELEMENT 
        TYPE:
        
        ·        
        Click
        
        
        Preprocessor>Element Type>Add/Edit/Delete... 
        In the 'Element Types' window that opens click on Add... The following 
        window opens.
        
         
        
        
        
         
        
        ·        
        Type 
        1 in the Element type reference number.
        
        ·        
        Click 
        on Flotran CFD and select 
        2D Flotran 141. Click OK. Close 
        the Element types window.
        
        ·        
        So now 
        we have selected Element type 1 to be solved using
        Flotran, the computational fluid 
        dynamics portion of ANSYS. This finishes the selection of element type.
        
         
        
        DEFINE THE FLUID 
        PROPERTIES:
        
        ·        
        
        Go 
        to 
        Preprocessor>Flotran Set Up>Fluid 
        Properties. 
        
        ·        
        On the 
        box, shown below, set the first two input fields as Air-SI, and 
        then click on OK.  Another box will appear.  Accept the default 
        values by clicking OK.
        
         
        
        
        
         
        
        ·        
        Now 
        we’re ready to define the Material Properties
        
         
        
         
        
        MATERIAL PROPERTIES
        
         
        
          |  | 
          We will model the 
          fluid flow problem as a thermal conduction problem. The flow 
          corresponds to heat flux, pressure corresponds to temperature 
          difference and permeability corresponds to conductance.  | 
          |  | 
          Go to the ANSYS 
          Main Menu  | 
          |  | 
          Click 
          Preprocessor>Material Props>Material Models. 
          The following window will appear  | 
        
        
         
        
        
        
         
        
          |  | 
          As displayed, 
          choose CFD>Density. The following window appears.
           | 
        
        
         
        
        
        
         
        
          |  | 
          Fill in 1.23 to set 
          the density of Air. Click OK.  | 
          |  | 
          Now choose CFD>Viscosity. 
          The following window appears:  | 
        
        
         
        
        
        
         
        
          |  | 
          Now the Material 1 
          has the properties defined in the above table so the Material Models 
          window may be closed.  | 
        
        
         
        
        MESHING:
        
         
        
        DIVIDING THE CHANNEL 
        INTO ELEMENTS:
        
          |  | 
          Go to 
          Preprocessor>Meshing>Size
          Cntrls>ManualSize>Lines>All 
          Lines.  | 
          |  | 
          In the window that 
          comes up type 0.01 in the field for 'Element edge length'.
           | 
        
        
         
        
        
        
         
        
          |  | 
          Now Click OK.
           | 
          |  | 
          Now go to 
          Preprocessor>Meshing>Mesh>Areas>Free. 
          Click the area and the OK. The mesh will look like the 
          following.  | 
        
        
         
        
        
        
         
        
         
        
        BOUNDARY CONDITIONS 
        AND CONSTRAINTS
        
         
        
          |  | 
          Go to 
          Preprocessor>Loads>Define 
          Loads>Apply>Fluid CFD>Velocity>On lines. Pick the left edge 
          of the outer block and Click OK. The following window comes up.
           | 
        
        
         
        
        
        
         
        
          |  | 
          Enter 0.1 in the VX 
          value field and click OK. The 0.1 corresponds to the velocity of 0.1 
          meter per second of air flowing from the left side.  | 
          |  | 
          Repeat the above 
          and set the Velocity to ZERO for the air along all of the edges 
          of the pipe.  (VX=VY=0 for all sides)  | 
          |  | 
          Once they have been 
          applied, the pipe will look like this:  | 
        
        
        
        
         
        
        ·        
        Go to
        
        Main 
        Menu>Preprocessor>Loads>Define Loads>Apply>Fluid  
        CFD>Pressure DOF>On Lines.
        
        ·        
        Pick 
        the outlet line.  (The horizontal line at the top of the area)  Click 
        OK.
        
        ·        
        Enter
        0 for the Pressure value.
        
        ·        
        Now the 
        Modeling of the problem is done.
        
         
        
        SOLUTION
        
         
        
          |  | 
          Go to ANSYS 
          Main Menu>Solution>Flotran 
          Set Up>Execution Ctrl.  | 
        
        
        ·        
        The 
        following window appears.  Change the first input field value to 300, 
        as shown.  No other changes are needed.  Click OK. 
        
         
        
        
        
         
        
          |  | 
          Go to 
          Solution>Run FLOTRAN.
           | 
          |  | 
          Wait for ANSYS to 
          solve the problem.  | 
          |  | 
          Click on OK and 
          close the 'Information' window.  | 
        
        
         
        
        POST-PROCESSING
        
         
        
          |  | 
          Plotting the 
          velocity distribution…  | 
          |  | 
          Go to 
          General 
          Postproc>Read 
          Results>Last Set.  | 
          |  | 
          Then go to 
          General 
          Postproc>Plot 
          Results>Contour Plot>Nodal Solution. The following window 
          appears:  | 
        
        
         
        
        
        
         
        
        ·                    
        Select
        DOF Solution and Velocity VSUM and Click OK.
        
        ·                    
        This is 
        what the solution should look like:
        
         
        
        
        
         
        
        ·                    
        Next, 
        go to Main Menu>General
        Postproc>Plot Results>Vector 
        Plot>Predefined. The 
        following window will appear:
        
         
        
        
        
         
        
        ·                    
        Select
        OK to accept the defaults.  This will display the vector plot 
        to compare to the solution of the same tutorial solved using the Heat 
        Flux analogy.  Note: This analysis is FAR more precise as shown by the 
        following solution:
        
         
        
        
         
        
        ·                    
        
        Go to
        
        Main 
        Menu>General Postproc>Path Operations>Define 
        Path>By Nodes
        
        ·                    
        
        Pick 
        points at the ends of the elbow as shown. We will graph the velocity 
        distribution along the line joining these two points.
        
         
        
        
        
         
        
        ·        
        
        The 
        following window comes up.
        
         
        
        
        
         
        
        ·        
        
        Enter 
        the values as shown.
        
        ·        
        
        Now go 
        to 
        Main 
        Menu>General Postproc>Path Operations>Map 
        onto Path. 
        The following window comes up.
        
         
        
        
         
        
        ·        
        
        Now go 
        to 
        Main 
        Menu>General Postproc>Path Operations>Plot 
        Path Items>On Graph.
        
        
        ·        
        
        The 
        following window comes up. 
        
         
        
        
        
         
        
        ·        
        
        Select
        
        VELOCITY 
        and click OK.
        
        ·        
        
        The 
        graph will look as follows:
        
         
        
        